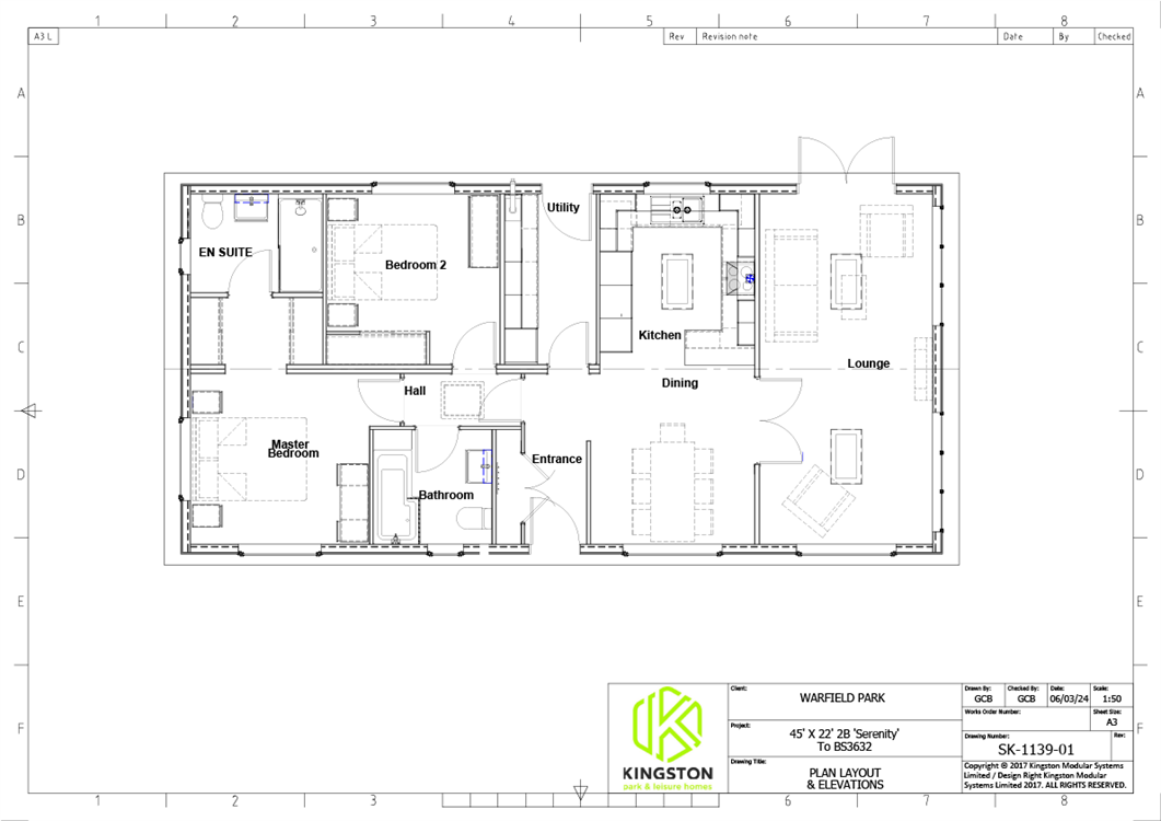
55 The Paddocks - 45' x 22' (990sq feet) Garden, Patio paths and driveway circa 3800sq feet plus 18sq ft Garage

£470,000

Available
Beds

2

bedrooms

Bathrooms

2

bathrooms

Receptions

1

reception

Description

INTRODUCTORY OFFER of £470,000 - List price £495,000
Welcome to the 45' x 22' 990sq feet, Kingston Serenity, a home that offers the perfect blend of spaciousness, light, and tranquillity. Set within a large, secluded plot, this stunning property features a detached garage and driveway parking, ensuring both convenience and privacy. Designed with comfort and cosiness at the forefront, the Serenity is the ideal choice for your new home.Garden, Patio paths and driveway circa 3800sq feet plus 18sq ft Garage

Key Selling Points

Full Details

With its traditional layout, refreshing exterior design, and exceptional build quality, the Kingston Serenity promises to provide years of comfortable living. Handcrafted in Hull, UK, this home is a testament to superior craftsmanship and attention to detail.

The living and dining area is flooded with natural light thanks to full height windows and French doors, creating a wonderfully spacious and airy atmosphere. The separate kitchen, designed with a more traditional feel, comes fully equipped with integrated appliances, including a fridge-freezer, dishwasher and washer/dryer as standard.

Additional features include:
• Enclosed kitchen with integrated appliance pack as standard
• External feature cladding for a stylish finish
• Full height glazing throughout, ensuring ample natural light
• Front and back external doors for easy access
• Domestic-style attic space • Detached garage with ample space for two cars on the driveway
• Front and rear ramps for enhanced accessibility
• Beautifully landscaped garden
• Nestled within The Paddocks, backing onto serene Sang, offering a peaceful and private setting This home provides a perfect environment for relaxation and tranquillity, making it an ideal choice for those seeking a comfortable and private lifestyle. Experience the best of both worlds with the Kingston Serenity.

NOTE: These particulars are intended only as a guide to prospective Tenants to enable them to decide whether to make further enquiries with a view to taking up negotiations but they are otherwise not intended to be relied upon in any way for any purpose whatsoever and accordingly neither their accuracy nor the continued availability of the property is in any way guaranteed and they are furnished on the express understanding that neither the Agents nor the Vendors are to be or become under any liability or claim in respect of their contents. Any prospective Tenant must satisfy himself by inspection or otherwise as to the correctness of the particulars contained.

Book a Viewing

If you are interested in viewing the property above, please complete the following form:




    Floorplan

    Floor Plan

    Virtual Tours