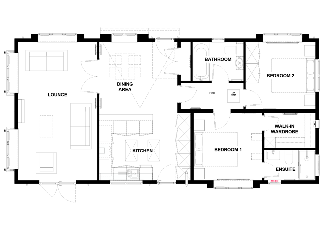
54 The Paddocks - 40' x 22' (880sq feet) Garden, Patio paths and driveway circa 3800sq feet plus 18sq ft Garage

£435,000

Available
Beds

2

bedrooms

Bathrooms

2

bathrooms

Receptions

1

reception

Description

Introductory offer - List price £455,000, offer price £435,000 save £20,000 ! Introducing the stunning Prestige Sofia at The Paddocks – a beautifully crafted residential park home, offering contemporary living with timeless elegance. At 40’ x 22’, 880sq feet, the Sofia may be our smallest home at The Paddocks, but it is full of character and charm, making it the perfect choice for a single professional or a couple looking to downsize to a tranquil, country setting. Garden, Patio paths and driveway circa 3800sq feet plus 18sq ft Garage. (Black Friday T&Cs apply)

Key Selling Points

Full Details

Open and Spacious Living

The home features a generous dual-aspect lounge that flows effortlessly through grand, fully-glazed double doors into the expansive kitchen and dining area. This seamless connection between spaces creates an elegant and open living environment, designed for both relaxation and entertaining.

Light-Filled Luxury

One of the standout features of the Sofia is its striking cathedral-style windows, flooding the home with natural light and offering panoramic views of the surrounding landscape. Whether you’re enjoying a morning coffee or a quiet evening, the flood of light creates an inviting atmosphere that enhances the home’s refined feel.

Modern, Well-Appointed Kitchen

The shaker-style kitchen boasts sleek, oak-effect worktops and is fully equipped for modern living. With an electric single eye-level oven, a five-burner gas hob, and integrated appliances including a fridge/ freezer, microwave, dishwasher, and washing machine, this kitchen is both stylish and practical. The dining area, featuring a dining table and chairs, is perfect for intimate meals or hosting guests.

Relax and Unwind in the Lounge

Relax in the spacious lounge, where you can sit back on comfortable sofas and enjoy the peaceful view of the expansive garden, complete with a backdrop of mature trees. The electric fireplace adds a cosy touch, creating a warm and inviting atmosphere. Full-length eyelet curtains, a coffee table, and a lamp table complete the room, with a TV socket for your entertainment needs.

Comfortable Bedrooms for Restful Nights

The master bedroom offers superior comfort with a double bed, a padded headboard, and a feature wallpaper wall. A walk-in wardrobe provides ample storage space, while freestanding bedside cabinets, a dressing table, and a stool add a touch of luxury. A TV socket ensures you can enjoy your favourite shows from the comfort of your bed.

The second bedroom continues the theme of comfort with a double bed, a padded headboard, and colour-coordinated Roman blinds, creating a peaceful retreat for guests or family.

Outdoor Space and Accessibility

This home is complemented by a detached garage and a spacious driveway, offering ample parking and storage space. The property also boasts a beautifully landscaped garden with plenty of room to enjoy the natural surroundings. Two ramps provide easy access in and out of the home, ensuring it’s accessible for all.

Additional Features
• Vaulted ceilings throughout the home
• Shaker-style kitchen units
• Vinyl flooring
• Wallpaper feature walls in key areas
• Stylish electric fireplace in the lounge
• Ample storage with a walk-in wardrobe With everything ready for almost immediate move-in,

54 The Paddocks, Prestige Sofia is the perfect blend of contemporary style and country living. Don’t miss the chance to make this charming and functional home yours. Contact us today to arrange a viewing and experience this stunning home for yourself.

NOTE: These particulars are intended only as a guide to prospective Tenants to enable them to decide whether to make further enquiries with a view to taking up negotiations but they are otherwise not intended to be relied upon in any way for any purpose whatsoever and accordingly neither their accuracy nor the continued availability of the property is in any way guaranteed and they are furnished on the express understanding that neither the Agents nor the Vendors are to be or become under any liability or claim in respect of their contents. Any prospective Tenant must satisfy himself by inspection or otherwise as to the correctness of the particulars contained.

Book a Viewing

If you are interested in viewing the property above, please complete the following form:




    Floorplan

    Floor Plan

    Virtual Tours